外観
外観
外観
外観
外観
お庭
玄関
リビング
リビング
和室
洋室
2階部分
広縁
キッチン
浴室
洗面所
トイレ
離れ 物置
離れ 土蔵
土蔵内部
眺望
眺望
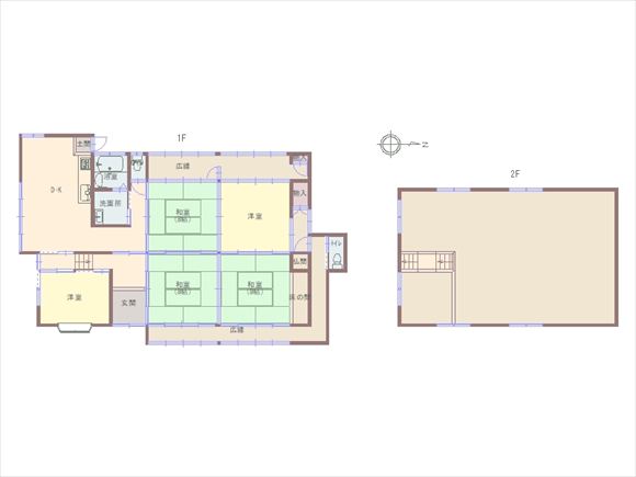
間取
敷地図
由良川の上流部で高台に位置する京丹波町の物件です。眼下には由良川が流れ、周囲には田園風景が広がるまさに絶景。日本の原風景のような、のどかで穏やかな田舎暮らしが叶う場所です。敷地内には、築年不詳の趣ある古民家に加え、物置と土蔵も付属。約10年前に水回りのリフォームが施されており、キッチン、トイレ、洗面所、浴室は状態も良好で、すぐにでも快適な生活が始められます。リビングには床暖房が完備されており、寒さの厳しい冬でも暖かく快適に過ごすことができます。アクセスも良好で、JR山陰本線「安栖里」駅から約2.4km、京都縦貫道「京丹波わち」ICからも約5.7kmと、田舎ながらも都市との行き来がしやすい立地です。さらに、近くには人気の道の駅「和(なごみ)」もあり、新鮮な地元野菜や特産品を手頃な価格で手に入れることができます。自然に癒やされながらまさにトレンディの二地域居住を。快適な暮らしを。ぜひ現地をご覧ください。
| 交通 | JR山陰本線「安栖里」 駅より約2.4km 京都縦貫道「京丹波わち」ICより約5.7km |
|---|---|
| 所在地 | 京都府船井郡京丹波町 坂原西 |
| 面積 | 土地:482.63㎡ (約145.99坪) 延建:298.46㎡ (約90.28坪) 1F:161.24㎡ 2F:137.22㎡ |
| 建物 | 木造瓦葺2階建 |
| 地勢 | 平坦・傾斜地 |
| 築年 | 築年不詳 |
| 間取り | 5DK |
| 都市 計画 | 非線引き |
| 用途 地域 | 無指定 |
| 建ぺい /容積 | 60%/200% |
| 地目 | 宅地 |
| 現況 | 別荘利用中 |
| 私道 負担 | 無 |
| 道路 | 東側幅員約4m公道に接面 |
| 設備 | 電 気:関西電力 ガ ス:なし(オール電化) 上水道:公営上水道 トイレ:水洗(合併浄化槽) |
| 備考 | 宅地造成及び特定盛土等規制区域 土砂災害警戒区域内 固定資産税:12,500円 附属建物2棟有 ネット環境:CATV 携帯:〇 |
| 取引 形態 | 仲介 |
※掲載情報と現況が異なる場合は
現況優先となります。